Projet de construction de 4 bâtiments de sport et loisirs
LE PROJET
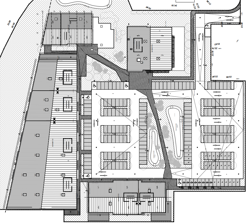
Dans le cadre du projet de construction de quatre bâtiments de sports et de loisirs, la Financière des Oliviers a confié à Géotec une mission d’études géotechniques de conception G2 AVP et G2 PRO. L’opération consiste en la construction de quatre bâtiments en simple RDC avec des surfaces de 590, 830, 1025 et 3500 m². Le projet comprend également la création de voiries, aires de stationnement pour véhicules légers ainsi que des espaces paysagers avec des noues paysagères et des espaces de circulation piétonne.
LES MISSIONS RÉALISÉES PAR GÉOTEC
- Réalisation de mission géotechnique de conception – phase avant -projet (G2 AVP) et phase projet (G2 PRO) ;
- Réalisation d’investigations géotechniques (sondages à la pelle mécanique, sondages pressiométriques, essais au pénétromètre dynamique, essais d’infiltration « PORCHET ») ;
- Dimensionnement des fondations des bâtiments (semelles) ;
- Justification des semelles sous charges sismiques (EC8) ;
- Préconisation pour les terrassements, les voiries et les zones de stationnement.
LES DÉFIS RELEVÉS
- Organisation et gestion du chantier avec de la coactivité ;
- Accompagnement du Maitre d’œuvre dans le projet d’un point de vue technique et réglementaire.
Localisation : Mondeville (14)
Client : Financière des Oliviers
MOE : Transition
MOE EXE : REFL -EXE
Période de prestation Géotec : Juin 2021 – Novembre 2022
Date de livraison du projet : 2023
Montant de la prestation Géotec : 17 k€
